
vonnis
RECHTBANK GELDERLAND
Civiel recht
Zittingsplaats Arnhem
zaaknummer: NL19.1472
Vonnis van 20 november 2019
in de zaak van
tegen
de vereniging van eigenaarsGEBOUW RESIDENCE LUZERNE,gevestigd te Tiel,verweerster, hierna te noemen: de VVE,advocaat mr. A. Smetsers.
Partijen worden hierna [gezamenlijke eisers] en de VVE genoemd.
1.1.Het verloop van de procedure blijkt uit:
- de procesinleiding van 22 januari 2019
- het verweerschrift
- de akte tot aanvulling / vermeerdering van eis van 23 september 2019
- de mondelinge behandeling op 4 oktober 2019.
1.2.Ten slotte is vonnis bepaald.
2.1. [gezamenlijke eisers] is sinds 2015 eigenaar van het appartementsrecht dat recht geeft op het uitsluitend gebruik van een woning gelegen op de tweede verdieping van het pand aan de [woonadres] . Het pand bestaat uit 8 woningen op de begane grond en op de eerste en tweede verdieping en 8 bergingen op de begane grond. Het pand is in 2015 gesplitst in 8 appartementsrechten, waarbij de VVE is opgericht. In de splitsingsakte is het modelreglement van de Koninklijke Notariële Beroepsorganisatie (versie 2006) van toepassing verklaard. Op of omstreeks 6 april 2017 heeft de overdracht van de appartementen aan de individuele eigenaars plaats gevonden.
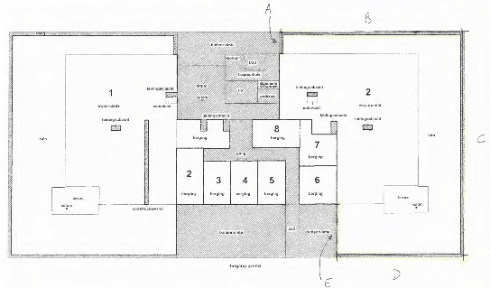
Onder letter C van de splitsingsakte (“Voorgenomen splitsing in appartementsrechten, splitsingstekening”) is onder meer het volgende bepaald:
Aan deze akte is daartoe een uit één blad bestaande tekening als bedoeld in artikel 5:109, lid 2 van het Burgerlijk Wetboek gehecht. Op die tekening zijn met de cijfers 1 tot en met 8 de gedeelten van het gebouw met aanbehoren aangegeven die bestemd zullen zijn om als afzonderlijk geheel te worden gebruikt.
Betreffende tekening is hieronder gedeeltelijk, namelijk waar het de begane grond betreft, opgenomen en voorzien van de voor deze procedure relevante letters A tot en met E.
Onder letter H van de splitsingsakte (“Wijzigingen en/of aanvullingen modelreglement”) is in aanvulling op artikel 31 lid 1 van het modelreglement het volgende bepaald:
De eigenaren van de appartementen met de indices 1 en 2 zijn verplicht hun tuin als siertuin aan te leggen en te onderhouden. (..) De perceelafscheiding tussen de openbare ruimte en de tuin van de appartementen met de indices 1 en 2 wordt gevormd door een beukenhaag, welke door de betreffende eigenaar onderhouden en in stand dient te worden gehouden. De kosten hiervan zijn voor rekening van de betreffende eigenaar. De erfafscheidingen tussen de percelen met de indices 1 en 2 mogen niet hoger zijn dan vijfenzeventig centimeter en mogen alleen gevormd worden door beplanting, eventueel gecombineerd met een hekwerk.
Op 13 juli 2016 heeft een bijeenkomst plaatsgevonden van de kopers van appartementsrechten in het pand. In het ‘Verslag bijeenkomst bewoners “Luzerne” te Tiel / VvE in oprichting’ is onder meer vermeld:
Feitelijk is dit de eerste vergadering van de Vereniging van Eigenaars in oprichting. De VvE gaat zelfstandig functioneren met haar eigen voorzitter, secretaris en penningmeester vanaf de oplevering van het gebouw en de appartementen. Tot die tijd vergadert de vereniging in oprichting onder voorzitterschap van een vertegenwoordiger van [woonadres] CV. Vastgesteld is dat er voldoende stemgerechtigden aanwezig zijn om besluiten te nemen die straks worden gerespecteerd en worden overgenomen door de VvE “Luzerne”. (..) 2.5 Huishoudelijk reglement en zaken ter goedkeuring. Tijdens de vorige vergadering is het concept Huishoudelijk Reglement uitgereikt met het verzoek hierop te reageren. (..) Hieronder volgen de opmerkingen en de individuele vragen ter goedkeuring: (..) - 8.11 punt 8 inzake gestelde maximumhoogte van een aan te brengen erfafscheiding van 75 cm.: de bewoners van bnr. 2 [naam] willen graag een standaardhekwerk met hoogte van 80 cm aanbrengen. Hoewel in de splitsingsakte ook het maximum van 75 cm is opgenomen, gaat de vergadering akkoord met deze geringe afwijking.
2.5.Op 2 november 2016 heeft een bijeenkomst plaats gevonden van de (destijds) toekomstige bewoners. Op 9 maart 2017 en 27 september 2017 hebben algemene ledenvergaderingen plaats gevonden. De notulen van deze bijeenkomsten bevatten geen opmerkingen over de onderwerpen waarop het geschil betrekking heeft.
In de ‘Notulen van de algemene ledenvergadering’ van 14 februari 2018 is onder meer vermeld:
3. Aanpassingen op het perceel [woonadres] in strijd met de Akte van Splitsing
Op het perceel en als erfafscheiding van het perceel [woonadres] (..) zijn door de heer en mevrouw [naam] de volgende aanpassingen aangebracht, welke op grond van de Akte van Splitsing en het Modelreglement 2006 niet zijn toegestaan. Voor deze stemming worden (..) stembriefjes uitgedeeld, zodat de stemming schriftelijk wordt vastgelegd.
3.1 De beukenhaag moet origineel teruggeplaatst worden. Het weghalen van de gehele beukenhaag als perceelafscheiding, welke eigendom is van de VVE en geplaatst is op gemeenschappelijke grond van de VVE (Akte van Splitsing artikel 31) te weten 5 stuks per strekkende meter. De stelling is: De beukenhaag moet origineel teruggeplaatst worden door Dhr. & Mevr. [naam] .
De stemming wordt gedaan en 7 van de 8 stemmen willen dat de beukenhaag wordt teruggeplaatst. [naam] geeft aan dat hij deze terug zal plaatsen. (..) De splitsingstekening is bij de jaarstukken ontvangen door alle eigenaren en geeft duidelijk aan wat tot de VVE behoort. (..)
Het hekwerk moet verplaatst worden naar eigen grond. Het plaatsen van een metalen hekwerk als perceelafscheiding op gemeenschappelijke grond van de VVE op de plaats van de beukenhaag (Akte van Splitsing artikel 31).
De stelling is: Het hekwerk moet verplaatst worden naar eigen grond door Dhr. & Mevr. [naam] . De stemming wordt gedaan en 6 van de 8 stemmen willen dat het hekwerk verplaatst moet worden naar eigen grond. Dit is een ALV besluit.
De toegangspoort aan de voorzijde is niet toegestaan en moet weggehaald worden. Het realiseren van een toegangshek als erfafscheiding op gemeenschappelijke grond van de VVE (Akte van Splitsing artikel 31).
De stelling is: De toegangspoort aan de voorzijde is niet toegestaan en moet weggehaald worden.
De stemming wordt gedaan en 5 van de 8 stemmen willen dat het toegangshek wordt weggehaald. Dit is een ALV besluit.
2.7.Vervolgens zijn de bewoners van de woning met indexnummer 2, de heer en mevrouw [naam] (hierna: [naam] ), in overleg getreden met de VVE.
Met betrekking tot het terugplaatsen van de beukenhaag en het verplaatsen van het hekwerk zijn nieuwe voorstellen ingebracht op de algemene ledenvergadering van 28 maart 2018. In de notulen van die vergadering is onder meer vermeld:
4. Aanpassing op het perceel [woonadres] in strijd met de Akte van Splitsing (..)Ten aanzien van dit punt is een nieuw voorstel binnengekomen, dat hierbij in deze ALV ter stemming wordt aangeboden. Voorstel:
Hekwerk mag blijven staan op strook VvE-grond en moet vergroeien met opnieuw te planten beukenhaag. Dit onder de volgende bindende voorwaarden:
- VvE geeft strook VvE-grond in bruikleen aan tuineigenaar onder voorwaarde dat de strook grond ten allen tijde VvE-eigendom blijft conform de splitsingstekening en hierop GEEN verjaring van kracht is.
- Onderhoud van het hekwerk en beukenhaag is voor tuineigenaar. Bij verkoop van het appartement dient alles terug gebracht te worden in de originele staat.
Besluit dd 28 maart 2018: Met 6 stemmen voor en 1 onthouding is dit voorstel aangenomen.
Hr. [gezamenlijke eisers] is het hier niet mee eens en verklaart het voorstel nietig. Hr. [gezamenlijke eisers] geeft aan dat het hekwerk hoger is dan de in de splitsingsakte aangegeven 75 cm. Derhalve is het een inbreuk op de splitsingsakte en dient deze hoogte aangepast te worden. Hij zal contact opnemen met zijn jurist over de te volgen stappen.
(…)
2.12.Medio 2018 hebben partijen door middel van mediation geprobeerd om gezamenlijk een oplossing te vinden voor hun geschil, maar dat is niet gelukt.
3.1. [gezamenlijke eisers] vordert dat voor recht wordt verklaard dat:
- het besluit van 13 juli 2016 van de algemene ledenvergadering, om het hekwerk van 80 cm toe te staan in strijd met de splitsingsakte, nietig is;
- dat het besluit van 28 maart 2018 van de algemene ledenvergadering, dat het hekwerk op gemeenschappelijke grond in strijd met de splitsingsakte mag blijven staan, nietig is.
Ook vordert [gezamenlijke eisers] dat de VVE wordt veroordeeld in de kosten van het geding.
[gezamenlijke eisers] vordert verder veroordeling van de VVE om:
- binnen 30 dagen na betekening van het vonnis bij de eigenaars van het appartement met index 2, met die juridische acties die daarvoor op grond van het splitsingsreglement van de VVE noodzakelijk zijn, af te dwingen dat de erfafscheiding tussen de percelen met de indices 1 en 2 dan wel feitelijk de erfafscheiding tussen het appartement met index 2 en de gemeenschappelijke grond van de VVE zal worden voorzien van beplanting en dat het reeds geplaatste hekwerk op de erfgrens zal worden verlaagd tot aan de toegestane 75 cm op straffe van een dwangsom van € 1.000,00 voor iedere dag dat de VvE met deze medewerking na betekening van het vonnis in gebreke blijft;
- om binnen 30 dagen na betekening van het vonnis af te dwingen (en indien nodig: die juridische acties die daarvoor op grond van het splitsingsreglement van de VVE noodzakelijk zijn) van het rechtsgeldig genomen besluit van de vergadering van eigenaars van 14 februari 2018 zoals verwoord onder punt 3.2 van de notulen van die vergadering inhoudende dat het metalen hekwerk als perceelafscheiding op gemeenschappelijke grond van de VvE zal worden verplaatst naar de eigen grond van de heer en mevrouw [naam] op straffe van een dwangsom van € 1.000,00 voor iedere dag dat de VvE met deze nakoming c.q. medewerking na betekening van het vonnis in gebreke blijft.
3.2.De VVE voert verweer.
3.3.Op de stellingen van partijen wordt hierna, voor zover van belang, nader ingegaan.
4.1.In deze procedure beroept [gezamenlijke eisers] zich op de nietigheid van de besluiten van 13 juli 2016 en 28 maart 2018. In dat verband speelt een vijftal vragen. Heeft [gezamenlijke eisers] voldoende belang bij zijn vorderingen? Is sprake van een VVE-besluit van 13 juli 2016? Zo ja, heeft [gezamenlijke eisers] zijn rechten verwerkt om op de nietigheid van dat besluit een beroep te doen? Zijn het besluit van 13 juli 2016 en het besluit van 28 maart 2018 nietig? En ten slotte, zijn de vorderingen toewijsbaar? De rechtbank oordeelt dat [gezamenlijke eisers] voldoende belang heeft, dat sprake is van nietige besluiten en dat [gezamenlijke eisers] op die nietigheid een beroep kan doen. De vorderingen zijn deels toewijsbaar. De rechtbank licht dit als volgt toe.
Heeft [gezamenlijke eisers] voldoende belang bij zijn vorderingen?
4.2.Een beroep op nietigheid kan worden gedaan door een ieder die daarbij een redelijk belang heeft. De VVE stelt dat [gezamenlijke eisers] geen belang heeft bij de nietigverklaring van de besluiten. De stelplicht en bewijslast op dit punt liggen bij de VVE. De rechtbank is van oordeel dat de VVE onvoldoende heeft gesteld tegenover de gemotiveerde betwisting door [gezamenlijke eisers] . De akte, het reglement en de tekening zijn in de eerste plaats in het belang van de afzonderlijke en gezamenlijke eigenaars opgesteld en zij zijn daaraan gebonden. Het is evident dat elke eigenaar belang heeft bij correcte toepassing en naleving daarvan, ook met het oog op het voorkomen van geschillen die financieel nadeel tot gevolg kunnen hebben. Daar komt bij dat in de splitsingsakte ervoor is gekozen om, kennelijk met het oog op de uitstraling van het gebouw, voorschriften op te stellen waar het de erfafscheidingen betreft. Elke bewoner heeft een belang bij de uitstraling van het gebouw, dus ook [gezamenlijke eisers] . Voor zover de VVE betoogt dat het slechts kleine afwijkingen van de splitsingsakte betreft, overweegt de rechtbank dat elke afwijking nietig is. Dat de splitsingsakte op het punt van de erfafscheidingen misschien minder ruimte biedt dan de VVE nu zou willen, is het gevolg van de keuze om in de splitsingsakte gedetailleerde voorschriften op te nemen over die erfafscheidingen en doet aan niet af aan de nietigheid van besluiten die daarmee strijdig zijn.
Het besluit van 13 juli 2016
Is sprake van een VVE-besluit van 13 juli 2016?
4.3.De VVE heeft tijdens de mondelinge behandeling betoogd dat op 13 juli 2016 geen besluit als gesteld door [gezamenlijke eisers] is genomen. Het betrof slechts een discussie over een conceptversie van het Huishoudelijk Reglement en dat reglement is pas later vastgesteld. Dit betekent volgens de VVE dat [gezamenlijke eisers] niet-ontvankelijk is in zijn vordering die op dat besluit betrekking heeft.
4.4.De rechtbank overweegt dat uit het verslag van betreffende bijeenkomst blijkt dat punt 2.5 niet slechts betrekking had op opmerkingen over het concept huishoudelijk reglement, maar ook op “zaken ter goedkeuring”. De passage over de hoogte van de erfafscheiding betrof ook geen wens om het huishoudelijk reglement aan te passen, maar de wens van de heer en mevrouw [naam] om af te mogen wijken van de in het (concept) huishoudelijk reglement en de splitsingsakte genoemde hoogte van 75 cm. Uit het verslag volgt ondubbelzinnig dat goedkeuring van de vergadering is verleend om van dat reglement en die splitsingsakte af te wijken. Verder in aanmerking genomen dat in het, nadien goedgekeurde, verslag is opgenomen dat de genomen besluiten zullen worden gerespecteerd en worden overgenomen door de VVE, is naar het oordeel van de rechtbank sprake van een besluit.
Heeft [gezamenlijke eisers] het recht verwerkt om de nietigheid van dit besluit in te roepen?
4.5.De VVE stelt zich, voor zover wel sprake zou zijn van een besluit, op het standpunt dat [gezamenlijke eisers] het recht heeft verwerkt om zich te beroepen op de nietigheid van dat besluit. Ook zou sprake zijn van misbruik van procesrecht. De VVE heeft erop gewezen dat ook [gezamenlijke eisers] tijdens de bijeenkomst op 13 juli 2016 akkoord is gegaan met (en vervolgens tot 28 maart 2018 niet geageerd heeft tegen) een hekwerk van 80 cm hoogte. Ook heeft de VVE erop gewezen dat in een brief van de gemachtigde van [gezamenlijke eisers] van 16 augustus 2018 is vermeld: “Het verzoek ziet niet op de hoogte van enig hekwerk.” Op de VVE rusten op dit punt de stelplicht en bewijslast.
4.6.De rechtbank overweegt dat rechtsverwerking een uitwerking is van het in artikel 6:2 BW neergelegde beginsel dat redelijkheid en billijkheid inbreuk kunnen maken op tussen partijen geldende regels die voortvloeien uit wet, gewoonte of rechtshandeling. Enkel tijdsverloop of stilzitten van de schuldeiser levert geen rechtsverwerking op. Vereist zijn bijzondere omstandigheden als gevolg waarvan bij de schuldenaar hetzij het gerechtvaardigd vertrouwen is gewekt dat de aanspraak niet meer geldend zal worden gemaakt, hetzij de positie van de schuldenaar onredelijk zou worden benadeeld of verzwaard in geval de schuldeiser zijn aanspraak alsnog geldend zou maken. In de stukken heeft [gezamenlijke eisers] gesteld dat hij van meet af aan geageerd heeft tegen de verleende goedkeuring, maar dat dit niet is genotuleerd. De rechtbank gaat hieraan voorbij, omdat dit nergens uit blijkt. Tijdens de mondelinge behandeling heeft [gezamenlijke eisers] erop gewezen dat het geen zin had om al in een vroeg stadium (voor oplevering gebouw of plaatsing hekwerk) commentaar te hebben. Daarnaast is er volgens hem veel tijd verstreken voordat de huidige situatie is ontstaan en zijn er gaandeweg discussies en feitelijke veranderingen ten aanzien van de beplanting en hekwerken geweest. De rechtbank is van oordeel dat de VVE onvoldoende heeft gesteld tegenover de gemotiveerde betwisting door [gezamenlijke eisers] . Niet gebleken is dat [gezamenlijke eisers] uitdrukkelijk afstand heeft gedaan van een vordering en evenmin dat de VVE in de hiervoor genoemde omstandigheden er gerechtvaardigd op heeft mogen vertrouwen dat [gezamenlijke eisers] geen pogingen meer zou ondernemen om de feitelijke situatie in overeenstemming te doen zijn met hetgeen op grond van de akte, het reglement en de tekening mag worden verwacht. Evenmin is gebleken dat de VVE onredelijk wordt benadeeld door het nu alsnog instellen van de vorderingen. De stelling dat sprake is van misbruik van procesrecht is verder niet onderbouwd, zodat ook dit niet in de weg staat aan de ontvankelijkheid van [gezamenlijke eisers] in zijn vordering.
Is het besluit ‘dat erfafscheidingen tussen de percelen hoger mogen zijn dan 75 cm’ nietig?
4.7. [gezamenlijke eisers] vordert, zoals gezegd, een verklaring voor recht dat het besluit van 13 juli 2016, waarbij goedkeuring is verleend om een standaardhekwerk met hoogte van 80 cm aan te brengen, nietig is.
4.8.Op grond van artikel 2:14 en artikel 5:129 BW is een besluit nietig als dat besluit strijdig is met de akte of het reglement van splitsing. Een nietig besluit is ongeldig en kan worden genegeerd omdat het feitelijk niet bestaat.
4.9.Bij de uitleg van de akte van splitsing en de daaraan gehechte splitsingstekening komt het aan op de daarin tot uitdrukking gebrachte bedoeling van degene die tot splitsing is overgegaan. Deze bedoeling moet naar objectieve maatstaven worden afgeleid uit de omschrijving in die akte en de daaraan gehechte tekening, bezien in het licht van de gehele inhoud van de akte en de tekening. Deze grammaticale uitleg mag geen strijd opleveren met de verdere inhoud. De rechtszekerheid vergt dat slechts acht mag worden geslagen op de gegevens die voor derden uit of aan de hand van de in de openbare registers ingeschreven splitsingsstukken kenbaar zijn. Geen betekenis komt toe aan andere dan in de openbare registers ingeschreven stukken, waarnaar niet in de splitsingsstukken wordt verwezen. Subjectieve bedoelingen van partijen die niet uit de splitsingsstukken blijken doen daarbij niet ter zake. Indien de ingeschreven stukken voor verschillende uitleg vatbaar zijn, dient de rechter vast te stellen welke uitleg van deze stukken naar objectieve maatstaven het meest aannemelijk is. In geval van tegenstrijdigheid tussen de akte van splitsing en de splitsingstekening kan niet op voorhand ervan worden uitgegaan dat hetzij de akte van splitsing, hetzij de splitsingstekening de bedoeling van degene die tot splitsing is overgegaan juist weergeeft. De rechter zal aan de hand van de aan de splitsingsstukken te ontlenen aanwijzingen – waaronder de mate van gedetailleerdheid waarin de desbetreffende gedeelten zijn omschreven in de tekst van de akte onderscheidenlijk zijn weergegeven in de splitsingstekening, en hetgeen overigens uit de splitsingsstukken valt af te leiden omtrent de bedoeling van degene die tot splitsing is overgegaan - en gelet op de aannemelijkheid van de rechtsgevolgen waartoe de onderscheiden interpretaties zouden leiden, moeten bepalen of doorslaggevend gewicht toekomt aan de akte van splitsing dan wel aan de splitsingstekening (ECLI:NL:HR:2013:1078).
4.10.Vooropgesteld moet worden dat het gaat om de nietigheid van het besluit van 13 juli 2016, niet om de wijze waarop aan dat besluit uitvoering is gegeven. Dit is van belang omdat in de stukken en tijdens de mondelinge behandeling is getwist over de exacte locatie van het door [naam] geplaatste hekwerk en over de hoogte van dat hekwerk. Dat betreft echter de feitelijke uitvoering, niet het besluit zelf. Een besluit dat het mogelijk maakt om in strijd te handelen met de splitsingsakte kan nietig zijn, ook al is van die mogelijkheid (nog) geen gebruik gemaakt.
4.11.In de splitsingsakte is onder H. opgenomen dat de erfafscheidingen tussen de percelen met de indices 1 en 2 niet hoger mogen zijn dan vijfenzeventig centimeter en alleen mogen gevormd worden door beplanting, eventueel gecombineerd met een hekwerk. In het besluit van 13 juli 2016 wordt ook verwezen naar de genoemde hoogte van 75 centimeter en niet in geschil is dat daarmee is beoogd van die maximale hoogte af te wijken. Die strijd met de splitsingsakte wordt zelfs in het besluit genoemd. Daarmee is duidelijk dat is besloten om af te wijken van de splitsingsakte en zoals hiervoor al overwogen is een dergelijk besluit nietig.
De VVE heeft nog betoogd dat eigenlijk niet wordt afgeweken van de splitsingsakte omdat de betreffende bepaling in de splitsingsakte ziet op de erfafscheidingen tussen de percelen met de indices 1 en 2, terwijl uit de splitsingstekening volgt dat een dergelijke grens niet bestaat. Aan beide kanten van het gebouw bevindt zich tussen die percelen namelijk een stuk gemeenschappelijke grond. Dit betoog slaagt niet. Ten eerste doet de vraag of een bepaling in de splitsingsakte op dit moment relevant is, er niet aan af dat een expliciet besluit om van die bepaling af te wijken nietig is. Daarnaast is de rechtbank van oordeel dat naar objectieve maatstaven uit de tekst van de akte en de splitsingstekening moet worden afgeleid dat met de woorden “erfafscheidingen tussen de percelen met indices 1 en 2”, mede wordt gedoeld op de erfafscheidingen die door de VVE met de letters A en E zijn aangeduid. Daartoe is van belang dat uit de splitsingstekening volgt dat het perceel van [naam] door vijf stroken wordt begrensd, in de tekening zoals hiervoor onder punt 2.2. opgenomen aangeduid als A tot en met E. In de splitsingsakte wordt een onderscheid gemaakt tussen twee soorten scheidingen. Ten eerste de scheidingen tussen de percelen met de indices 1 en 2 en de openbare ruimte, en ten tweede de scheidingen tussen de percelen met de indices 1 en 2 onderling. Zoals hierna nog zal overwogen wordt de scheiding tussen de tuin en de openbare ruimte gevormd door de stroken B, C en D. Dit duidt erop dat met de scheiding tussen de percelen onderling wordt gedoeld op de overige grenzen van de tuin, de stroken A en E. Daarnaast bevinden deze stroken zich tussen de percelen met indices 1 en 2, zodat aan de tekst van de bepaling wordt voldaan. Ten slotte is voor de uitleg van de tekst van de akte en de splitsingstekening nog van belang dat moet worden aangenomen dat met het opnemen van bepalingen in een splitsingsakte in beginsel een doel wordt beoogd. Deze aanname geldt te meer als een bepaling expliciet is opgenomen in aanvulling op het standaardreglement. Dit houdt in dat de lezing van de VVE, inhoudende dat de aanvulling op artikel 31 lid 1 van het modelreglement irrelevant is omdat die op een niet bestaande grens ziet, niet houdbaar is.
Op grond van deze argumenten is de rechtbank van oordeel dat de in de splitsingsakte opgenomen duidelijke en eenduidige hoogtenorm van maximaal 75 centimeter betrekking heeft op de erfgrenzen die zijn aangeduid als A en E. Bij dit alles merkt de rechtbank nog op dat dit in deze procedure wel in twijfel wordt getrokken, maar dat uit niets blijkt dat voor de VVE eerder onduidelijk is geweest dat het besluit van 13 juli 2016 op deze stroken betrekking had.
4.13.Hetgeen de VVE daartegen verder heeft aangevoerd slaagt evenmin. Voor zover het uiteindelijk geplaatste hek niet op de erfgrens zou staan maar op eigen grond, en naar de VVE kennelijk veronderstelt dan geen erfafscheiding zou vormen, doet dat aan de nietigheid van het besluit niet af. Het besluit maakt het mogelijk om in afwijking van het de splitsingsakte een hoger hekwerk ter erfafscheiding te plaatsen en is daarmee nietig, ongeacht of uiteindelijk een hogere erfafscheiding wordt geplaatst of niet.
Het besluit van 28 maart 2018
4.14. [gezamenlijke eisers] vordert verder een verklaring voor recht dat het besluit van 28 maart 2018 nietig is. Dit betreft het besluit dat het door [naam] geplaatste hekwerk mag blijven staan en moet vergroeien met een opnieuw te planten beukenhaag, onder een aantal voorwaarden. [gezamenlijke eisers] stelt dat dat dit besluit in strijd is met (het aangevulde) artikel 31 van het modelreglement waarin is bepaald dat de perceelafscheiding tussen de openbare ruimte en de tuin wordt gevormd door een beukenhaag.
4.15.De VVE betwist allereerst dat dit artikel betrekking heeft op de smalle strook gemeenschappelijke grond en het zich daarop bevindende hekwerk. De akte bepaalt dat de perceelafscheiding tussen de openbare ruimte en de tuin van de appartementen met de indices 1 en 2 wordt gevormd door een beukenhaag. Volgens de VVE bestaat een dergelijke perceelafscheiding echter niet nu de privétuinen en de openbare ruimte niet aan elkaar grenzen.
4.16.Dit betoog volgt de rechtbank niet. Tussen partijen is niet in geschil dat zich tussen de privédelen en de openbare ruimte een strook van ca. 30 cm bevindt die gemeenschappelijk eigendom is. Dit volgt ook uit de gedetailleerde splitsingstekening. Op die tekening is de begrenzing van de privédelen duidelijk aangegeven, is betreffende strook goed zichtbaar en is daarbij het woord “haag” vermeld. Hoewel de akte ook op dit punt scherper geformuleerd had kunnen worden, moet de splitsingsakte, naar objectieve maatstaven bezien, zo worden uitgelegd dat de scheiding tussen de privédelen en de openbare ruimte moet worden gevormd door een beukenhaag die zich bevindt op die smalle strook gemeenschappelijk grond tussen die privétuinen en de openbare ruimte. Dit zijn de op de tekening aangeduide stroken B, C en D. Overigens blijkt uit niets dat de VVE bij het nemen van het besluit van 28 maart 2018 van iets anders is uitgegaan.
4.17.Verder betoogt de VVE dat het besluit van 28 maart 2018 in overeenstemming is met de splitsingsakte omdat vereist wordt dat de beukenhaag wordt teruggeplaatst en moet vergroeien met het hekwerk. Daarmee is sprake van een erfafscheiding die mede wordt gevormd door een beukenhaag. De toestemming om, onder voorwaarden, naast die beukenhaag ook een hekwerk te plaatsen, is een vorm van beheer van de gemeenschappelijke gedeelten die volgens de VVE is toegestaan. Dat er een beukenhaag moet staan betekent volgens de VVE nog niet dat het niet is toestaan om daarbij ook een hek te plaatsen. Een hekwerk is ook in overeenstemming met het ‘beeldkwaliteitsplan Passewaay 7’ en een gemeentelijk beleidsplan op grond waarvan een hekwerk tot 1,0 meter mogelijk is.
4.18.Ook dit betoog faalt. In beginsel moet worden aangenomen dat als in een splitsingsakte een specifiek type erfafscheiding is opgenomen, slechts dit type is toegestaan en niet andere typen of combinaties. De rechtbank volgt dan ook niet het standpunt van de VVE dat erop neer komt dat “een hekwerk toegestaan is, omdat dit niet expliciet verboden is”. Hierbij speelt artikel 5:111 BW een rol, waarin onder meer is bepaald dat de akte ‘een nauwkeurige omschrijving’ moet bevatten. Dit ook met het oog op de rechtszekerheid en mogelijke rechtsgevolgen. Nu de akte slechts een beukenhaag als toegestane erfafscheiding noemt - in tegenstelling tot hetgeen is vermeld over de erfafscheidingen tussen de percelen 1 en 2 (“beplanting, eventueel gecombineerd met een hekwerk”) - moet deze tekst restrictief worden uitgelegd. De erfafscheiding ter plaatse van de stroken B, C en D moet dus worden gevormd door een beukenhaag. Dat het op grond van gemeentelijk beleid mogelijk was om in de splitsingsakte andere keuzes te maken, doet hier niet aan af, aangezien die andere keuzes niet zijn gemaakt.
4.19.Dit betekent niet dat het onmogelijk is om, in het kader van het beheer van de gemeenschappelijke strook, toestemming te verlenen voor het plaatsen van andere objecten op die strook. Het betekent wel dat die objecten niet (hetzij door positionering, hetzij door hoogte) feitelijk afbreuk mogen doen aan een beukenhaag als erfafscheiding. Een besluit tot het laten plaatsen van een hekwerk is dan ook slechts mogelijk, als daarbij wordt gewaarborgd dat de beukenhaag als erfafscheiding blijft fungeren. In aanmerking genomen dat niet in geschil is dat de voorschriften met betrekking tot de buitenruimte met name tot doel hebben het aanzien van het gebouw te reguleren, moet de vraag of de beukenhaag nog als erfafscheiding fungeert, worden beoordeeld aan de hand van de uiterlijke verschijningsvorm.
In het besluit van 28 maart 2018 wordt niet gewaarborgd dat de beukenhaag als erfafscheiding blijft fungeren, bijvoorbeeld door te bepalen dat het hekwerk zich aan de binnenzijde van de haag moet bevinden en niet hoger mag zijn dan die haag. Daarmee is dat besluit nietig.
Hoewel voor de nietigheid van het besluit niet bepalend, merkt de rechtbank daarbij op dat uit de overgelegde foto’s blijkt dat het hekwerk ook feitelijk op een aantal plaatsen naar uiterlijke verschijningsvorm als erfafscheiding heeft te gelden. Het hekwerk grenst daar direct aan de openbare ruimte, terwijl de stammen van de beukenhaag erachter zijn geplaatst. Hiermee is, objectief bezien, het hekwerk de daadwerkelijke erfafscheiding. De beukenhaag zal naar verwachting weliswaar groeien, ook door en boven het hek, maar dit doet er niet aan af dat het hekwerk dusdanig dominant is dat zij als dé feitelijke erfafscheiding kan en zal worden beschouwd. Hierbij komt dat de haag niet het gehele jaar blad draagt en periodiek teruggesnoeid wordt, waardoor het hekwerk gedurende een groot deel van het jaar extra goed zichtbaar is en de haag minder.
Zijn de vorderingen toewijsbaar?
4.21.De gevorderde verklaringen voor recht zullen gelet op het hiervoor overwogene worden toegewezen.
4.22. [gezamenlijke eisers] vordert verder, samengevat, dat de VVE binnen 30 dagen met die juridische acties die daarvoor op grond van het splitsingsreglement van de VVE noodzakelijk zijn afdwingt dat, ten eerste, de erfafscheiding ter plaatse van de stroken A en E zal worden voorzien van beplanting en dat het reeds geplaatste hekwerk op die erfgrens zal worden verlaagd tot aan de toegestane 75 cm en dat, ten tweede, het hekwerk ter plaatse van de stroken B, C en D van de gemeenschappelijke grond zal worden verplaatst naar de eigen grond van de heer en mevrouw [naam] . Aan beide verplichtingen is een dwangsom verbonden.
4.23.De rechtbank overweegt dat [gezamenlijke eisers] niet concreet heeft gemaakt welke stappen hij van de VVE verwacht. Het modelsplitsingsreglement, dat op dit punt niet is aangevuld, bevat reeds in de artikelen 41 en 62 verschillende mogelijkheden voor het beslechten van geschillen, zodat een nadere verduidelijking wel nodig was. Verder gaan deze vorderingen ervan uit dat de VVE juridische acties onderneemt tegen [naam] , terwijl die in deze procedure geen partij is, zodat ook niet duidelijk welke verweren hij zou willen voeren. Door [gezamenlijke eisers] is ook niet duidelijk gemaakt op welke wijze de VVE op eventueel valide argumenten van [naam] moet reageren. Dit alles tezamen maakt dat deze vorderingen te onbepaald zijn om te kunnen worden toegewezen.
4.24.De VVE zal, als de grotendeels in het in het ongelijk gestelde partij, in de proceskosten worden veroordeeld. De kosten aan de zijde van [gezamenlijke eisers] worden begroot op:
- dagvaarding € 104,54
- griffierecht € 297,00
- salaris advocaat € 1.086,00 (2 punten × tarief € 543,00)
Totaal € 1.487,54
De rechtbank
5.1.verklaart voor recht dat het besluit van 13 juli 2016 van de vergadering van de VVE, om een verhoging van het hekwerk in strijd met de splitsingsakte toe te staan, nietig is,
5.2.verklaart voor recht dat het besluit van 28 maart 2018 van vergadering van de VVE, dat het hekwerk op gemeenschappelijke grond in strijd met de splitsingsakte mag blijven staan, nietig is,
5.3.veroordeelt de VVE in de proceskosten, aan de zijde van [gezamenlijke eisers] tot op heden begroot op € 1.487,54,
5.4.verklaart dit vonnis waar het proceskosten betreft uitvoerbaar bij voorraad,
5.5.wijst het meer of anders gevorderde af.
Dit vonnis is gewezen door mr. G.A. van der Straaten en door mr. H.F.R. van Heemstra in het openbaar uitgesproken op 20 november 2019.